310 Designs & Development

WELCOME TO

STRAWBERRY ACRES

A DEVELOPMENT BY KELLIE CARDINAL AND 310 DESIGNS AND DEVELOPMENT

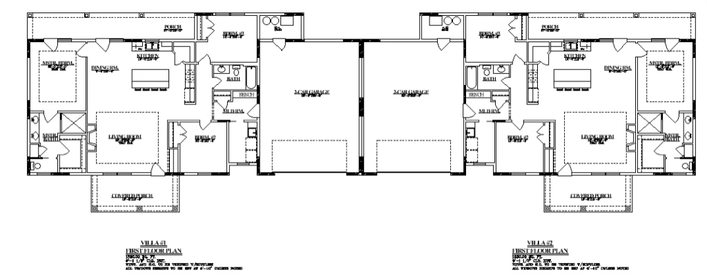
This 1.5-acre development targets one of the primary demographics for White Bear Lake by offering single level living in duplex units, which are in high demand, especially with the 50+ generation. This site will help keep our seniors in the White Bear Lake community, close and involved with their extended families.

The private street has additional parking spaces for the community. Adequate turn-around for emergency vehicle access is also provided. Property borders to the South and North will have privacy fence installed to assist with privacy needs of the bordering neighbors.

Highlights

  • Breathtaking and serene countryside views
  • Estate lots to afford varying tastes and styles of finely crafted homes Secure investment through architectural control & premium location
  • Beautiful and spacious living environments, featuring an alluring mixture of woods and open spaces 

If you would like to speak with someone regarding our concept plan proposal, or if you would like to request any documentation regarding our plans, you can contact us at Kellie Cardinal, 651-485-1113 or kellie@redbirdrealestate.com.

Scroll to Top